


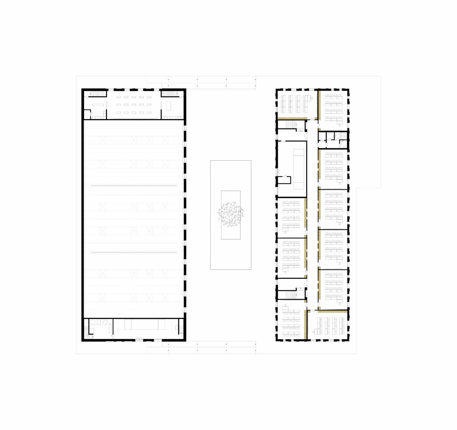
The expansion project at the “Athenée royale les Marlaires de Gosselies” school involves the construction of 15 new classrooms and a sizable sports hall to enhance its educational facilities.
The building dedicated to the classrooms primarily utilizes CLT for walls, floors, and roof across two levels. This choice in construction material offers structural efficiency while creating an aesthetically pleasing environment for children. The large areas of visible wood inside ensure a safe and comfortable setting that accommodates the needs of the students.
The new sports hall, covering almost 1000 m², features timber frame walls. Large glulam beams form the primary structure of the roof, highlighting the ability of timber to create long spans.
The courtyard is constructed using CLT offcuts from the building that houses the classrooms. Its geometry and structural system were specifically designed to make this material reuse possible. This makes the project a prime example of circularity and on-site reuse of construction waste.
Rue de la providence, 6041 Gosselies
This Website Uses Cookies
This website may use cookies to enhance your browsing experience, analyze site traffic, and personalize content. By clicking “Accept All,” you consent to the use of cookies. For more information on how we use cookies, please visit our Privacy Policy.